AL SHAMKHA MEDICAL CENTRE
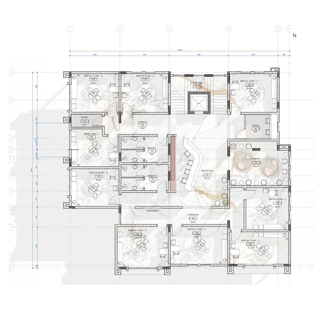
ADAPTIVE REUSE OF EXISTING RESIDENCE TO SPECIALIST DENTAL CLINIC
ABU DHABI, UNITED ARAB EMIRATES
2024. COMPLETE
DESIGN + TECHNICAL + DELIVERY




ADAPTIVE REUSE OF EXISTING RESIDENCE TO SPECIALIST DENTAL CLINIC
ABU DHABI, UNITED ARAB EMIRATES
2024. COMPLETE
DESIGN + TECHNICAL + DELIVERY



