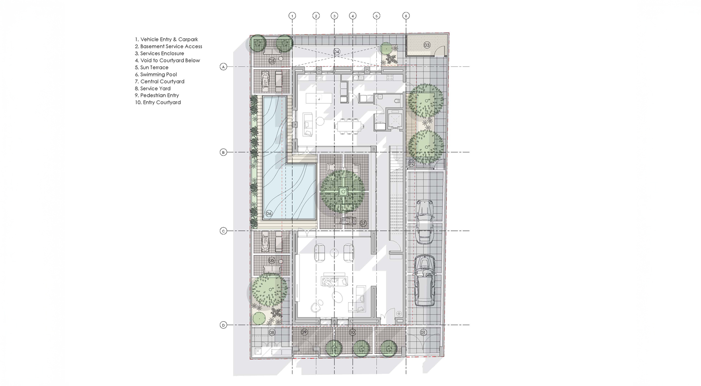
A1 Villa

PRIVATE RESIDENCE WITH INTERNAL COURTYARD

DUBAI, UNITED ARAB EMIRATES

2024. COMPLETE

DESIGN + TECHNICAL + DELIVERY

A1 Villa
A1 Villa
A1 Villa
A1 Villa
A1 Villa
A1 Villa
A1 Villa
A1 Villa
A1 Villa
A1 Villa
A1 Villa
A1 Villa
A1 Villa
A1 Villa
A1 Villa
A1 Villa
A1 Villa